oferta specjalna
108
ofert
Wojciech Wodnicki

Doradca d/s nieruchomości

w.wodnicki@mkinvestment.pl

+48 501-100-545

zostaw wiadomość
17 313,11 zł/m2 cena: 799 000 zł

Udostępnij ofertę

Opis nieruchomości

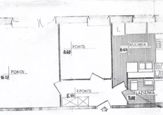
Do sprzedania spółdzielcze własnościowe mieszkanie 46,15m² składające się z przedpokoju z miejscem na szafę wnękową ok. 6m², łazienki ok. 4m², sypialni ok. 10,5m² i salonu z aneksem ok. 26m², oraz balkonu ok. 7m². Mieszkanie do odświeżenia i pod wynajem, mogę zostawić meble lub dla docelowych mieszkańców. Projekt indywidualny i aranżacja architekta - 20 lat temu. Mieszkanie narożne, wysokie pierwsze piętro okna północny i południowy wschód. Bardzo słoneczne ale nie gorące. Piękny, szeroki widok, nie tylko ulica Stryjeńskich i Jaworowa ale w oddali bazar na Wąwozowej i Las Kabacki, oba oddalone ok. 700 metrów. Znakomity punkt komunikacyjny, autobusy i autobus nocny pod blokiem, do metra 7 minut piechotą lub dwa przystanki autobusem, duże markety w promieniu 2km, żabka i delikatesy w bloku, Lidl obok. W pobliżu przedszkola, szkoły podstawowe, przychodnia publiczna. Do lasu kabackiego kilkaset metrów, kilka minut piechotą.
Sprzedaż WYŁĄCZNIE za GOTÓWKĘ ale uregulowany status gruntu i większość mieszkań z przeniesioną własnością do księgi wieczystej istniejącej dla budynku. Przeniesienie takie w gestii nowego właściciela w późniejszym czasie. Na klatce dwie windy, jedna jeżdżąca do poziomu dwupoziomowego garażu podziemnego. Ochrona, zamknięte patio, własne miejsce parkingowe na poziomie -1, samodzielne, między dwoma słupami, duże, przy samej windzie płatne dodatkowo 30000 zł, sprzedawane obligatoryjnie z lokalem, podobnie jak komórka lokatorska na piętrze 1,5m² płatna dodatkowo 20000 zł. Wolne . Zdjęcia aktualne 07/2024. Jest świadectwo energetyczne potrzebne do aktu notarialnego. Możliwość pozostawienie mebli i wyposażenia jeśli ktoś potrzebuje lokalu inwestycyjnego i usunięcia niepotrzebnych rzeczy do momentu zakupu i przekazania lokalu. Na zdjęciach nie ma widnej sypialni, aktualnie magazynku rzeczy z mieszkania.. Mieszkanie spółdzielcze własnościowe, spółdzielnia PAX. Czynsz za lokal z wszystkimi zaliczkami i ochroną ok. 650 PLN, za garaż dodatkowo ok. 250 PLN. Mieszkanie w zasobach spółdzielni pax, w upadłości, zarządzanej przez syndyka.
Serdecznie polecam i zapraszam na prezentację nieruchomości. Kontakt Wojciech Wodnicki, tel.; 501 100 545.

Nota prawna

Opis oferty zawarty na stronie internetowej sporządzany jest na podstawie oględzin nieruchomości oraz informacji uzyskanych od właściciela, może podlegać aktualizacji i nie stanowi oferty określonej w art. 66 i następnych K.C.

Szczegóły

Symbol oferty MKI-MS-59610
Powierzchnia 46,15 m²
Powierzchnia balkonów/tarasów 7,00 m²
Liczba pokoi 2
Piętro 1
Rodzaj budynku nowe budownictwo
Technologia budowlana cegła nowa
Standard
Opłaty w czynszu administracja, CO, Części wspólne, fundusz remontowy, monitoring, ogrzewanie, sprzątanie, Winda, woda ciepła, wywóz nieczystości, zaliczka na fundusz remontowy
Opłaty wg liczników CO, prąd, woda
Liczba pięter w budynku 11
Garaż garaż pod budynkiem
Piwnica 1,50 m²
Stan lokalu bardzo dobry
Stan prawny Spółdzielcze własnościowe
Mies. czynsz admin. 700 PLN
Okna PCV
Instalacje wymienione
Balkon jest
Liczba balkonów 1
Rok budowy 2003
Parking strzeżony (odległość w metrach) 10 m
Plac zabaw tak
Widok na inne budynki
Gaz brak
Woda ciepła - miejska
Dojazd asfaltowa/kostka
Otoczenie działki zabudowane
Ogrzewanie C.O. miejskie
Alarm tak
Winda tak
Liczba wind 1
Usytuowanie szczytowe
Drzwi antywłamaniowe tak
Przystosowania dla niepełnosprawnych tak
Rolety antywłamaniowe tak
Liczba sypialni 1
vir_oferta_iloscmiejscparking_pod 1

Pomieszczenia

Powierzchnia pokoi 26/10,5 m2
Podłogi pokoi parkiet
Typ kuchni z zabudową kuchenną
Rodzaj kuchni aneks kuchenny - połączony z salonem
Podłoga kuchni terakota
Typ łazienki razem z wc
Liczba łazienek 1
Powierzchnia łazienki 4,00 m2
Glazura łazienki glazura
Podłoga łazienki terakota
Wyposażenie łazienki lustro, pralka, prysznic, umywalka, wanna, WC
Liczba przedpokoi 1
Powierzchnia przedpokoi 6,00 m2
Podłoga przedpokoi terakota

Dane:

PLN
%

Wynik:

PLN
pierwsza rata
ostatnia rata
PLN
PLN
PLN
PLN
PLN
PLN
PLN
%
PLN
PLN
PLN

PLN

Uwaga: mogą wystąpić dodatkowe opłaty za założenie księgi wieczystej oraz ustanowienie hipoteki.

oferta specjalna
mieszkanie na sprzedaż - Warszawa, Ursynów, Imielin, Alternatywy

Warszawa, Ursynów, Imielin, Alternatywy
mieszkanie na sprzedaż

MKI-MS-59702

Sprzedam dwupokojowe mieszkanie 52m2 na Ursynowie przy ul. Alternatywy. - Przestronne mieszkanie o powierzchni 52m2, zlokalizowane na Ursynowie, w pobliżu Centrum Onkologii. Apartament znajduje się na 6 piętrze (ostatnim) w budynku z 2008 roku z windą. - Doskonałe ...

Powierzchnia
52,00 m2
Piętro
6
Pokoje
2 pokoje
Cena za m2
17 596,15 zł
cena 915 000
mieszkanie na sprzedaż - Warszawa, Ursynów, Imielin, Alternatywy
oferta specjalna
mieszkanie na sprzedaż - Warszawa, Ursynów, Imielin, Benedykta Polaka

Warszawa, Ursynów, Imielin, Benedykta Polaka
mieszkanie na sprzedaż

MKI-MS-59953

Mieszkanie w rewelacyjnej lokalizacji oraz cenie!!! - Tylko parę minut spacerkiem do metra Imielin. --- Mieszkanie 56,1m2 składa się z:  - trzech pokoi, - kuchni, - łazienki, - WC, - przedpokoju, - loggi, - piwnicy. --- Lokal do generalnego remontu i własnej ...

Powierzchnia
56,10 m2
Piętro
7
Pokoje
3 pokoje
Cena za m2
12 477,72 zł
cena 700 000
mieszkanie na sprzedaż - Warszawa, Ursynów, Imielin, Benedykta Polaka
oferta specjalna
mieszkanie na sprzedaż - Warszawa, Mokotów, Górny Mokotów, Kazimierzowska

Warszawa, Mokotów, Górny Mokotów, Kazimierzowska
mieszkanie na sprzedaż

MKI-MS-59007

Sprzedam mieszkanie na Starym Mokotowie. Mieszkanie na wydzielone 2 pokoje, oddzielną kuchnię chociaż bez okna, łazienkę z toaletą oraz przedpokój. Okna od wschodu na ulicę. Mieszkanie w świetnej lokalizacji - wszędzie blisko, tramwaj, autobus, metro. Idealna lokalizacja ...

Powierzchnia
41,00 m2
Piętro
parter
Pokoje
2 pokoje
Cena za m2
19 146,34 zł
cena 785 000
mieszkanie na sprzedaż - Warszawa, Mokotów, Górny Mokotów, Kazimierzowska
oferta specjalna
mieszkanie na sprzedaż - Warszawa, Wilanów, Miasteczko Wilanów, Rzeczypospolitej

Warszawa, Wilanów, Miasteczko Wilanów, Rzeczypospolitej
mieszkanie na sprzedaż

MKI-MS-59452

Bardzo ładne  trzy pokoje z tarasem. -  2 sypialnie 11m2 i 10m2, - salon z aneksem kuchennym 16m2, - otwarty taras 13 metrów, - łazienka 5,7m2, - hol. Całkowita powierzchnia 50,2 metra. Wysokość sufitu 2,8 metra. Parkiet dębowy. Panoramiczne drewniane okna w podłodze. ...

Powierzchnia
50,20 m2
Piętro
3
Pokoje
3 pokoje
Cena za m2
18 904,38 zł
cena 949 000
mieszkanie na sprzedaż - Warszawa, Wilanów, Miasteczko Wilanów, Rzeczypospolitej

Napisz do nas

Proszę wypełnić to pole
Proszę wypełnić to pole
Proszę wypełnić to pole
Proszę wypełnić to pole
Trwa wysyłanie...

Ta strona wykorzystuje pliki cookies w celach statystycznych oraz w celu dostosowania naszych serwisów do indywidualnych potrzeb klientów. Zmiany ustawień dotyczących plików cookie można dokonać w dowolnej chwili modyfikując ustawienia przeglądarki. Korzystanie z tej strony bez zmian ustawień dotyczących cookies oznacza, że będą one zapisane w pamięci urządzenia.

rozumiem