oferta specjalna
156
ofert
Wojciech Wodnicki

Doradca d/s nieruchomości

w.wodnicki@mkinvestment.pl

+48 501-100-545

zostaw wiadomość
19 000,18 zł/m2 cena: 1 049 000 zł

Udostępnij ofertę

Opis nieruchomości

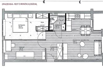
Przedmiotem oferty jest dwupokojowe mieszkanie na warszawskiej Ochocie o powierzchni 55,21m2, położone przy ul. Kaliska.
- Mieszkanie jest bardzo ciche, znajduje się w budynku położonym w drugiej linii zabudowy od ul. Grójeckiej, w odległości trzech przystanków autobusem do centrum Warszawy.
- Oferuję sprzedaż przestronnego mieszkania, położonego na 3. piętrze pięciopiętrowej kamienicy z lat 50.
- Lokal składa się z:
- salonu z funkcjonalnym, w pełni wyposażonym aneksem kuchennym,
- sypialni,
- przedpokoju
- łazienki.
- Dzięki dwustronnej ekspozycji (wschód / zachód) i dużym oknom mieszkanie jest jasne i pełne naturalnego światła.
- Z sypialni widok na wewnętrzne podwórko i starodrzew.
- Z salonu widok na ulicę Węgierską i w oddali Halę Kopińską.
--- Rozkład pomieszczeń w mieszkaniu:
- Salon z aneksem kuchennym: ok. 30m2,
- Sypialnia: ok. 18m2,
- Łazienka: ok. 4m2,
- Przedpokój: ok. 4m2.
--- Najważniejsze szczegóły:
- mieszkanie posiada odrębną księgę wieczystą (pełna własność, nieobciążona hipoteka)
- w budynku znajduje się winda
- do mieszkania przynależy piwnica o powierzchni ok. 4m2
- mieszkanie nie posiada balkonu
- wysokość pomieszczeń: ok. 2,9 m
- do dyspozycji mieszkańców jest parking na wewnętrznym ogrodzonym dziedzińcu
- aktualny czynsz administracyjny wynosi 575 zł
- w budynku dostępna telewizja kablowa i internet światłowodowy.
--- W mieszkaniu w 2012 r. przeprowadzony został gruntowny remont:
- ułożona podłoga z drewna egzotycznego (lita deska Merbau),
- zamontowano drzwi antywłamaniowe Gerda oraz drzwi wewnętrzne Stolbud,
- wykonano na wymiar szafy wnękowe Komandor,
- zainstalowano wysokiej jakości armatura (Grohe),
- wykonano na wymiar zabudowę kuchenną.
- Mieszkanie gotowe do wprowadzenia lub ew. do niewielkiego odświeżenia.
--- W budynku przeprowadzono termomodernizację elewacji, wymienione zostały instalacje: elektryczna, gazowa, centralnego ogrzewania oraz wodna.
- Wymiana windy planowana jest na 2026 r., klatka schodowa również zostanie wyremontowana.

Serdecznie polecam i zapraszam na prezentację nieruchomości. Kontakt Wojciech Wodnicki, tel.: 501 100 545.

Nota prawna

Opis oferty zawarty na stronie internetowej sporządzany jest na podstawie oględzin nieruchomości oraz informacji uzyskanych od właściciela, może podlegać aktualizacji i nie stanowi oferty określonej w art. 66 i następnych K.C.

Szczegóły

Symbol oferty MKI-MS-60050
Powierzchnia 55,21 m²
Liczba pokoi 2
Piętro 3
Rodzaj budynku kamienica
Technologia budowlana cegła stara
Standard
Opłaty w czynszu Części wspólne, CO, administracja, woda ciepła, Winda, sprzątanie, ogrzewanie, monitoring, fundusz remontowy, wywóz nieczystości, zaliczka na fundusz remontowy
Opłaty wg liczników CO, woda, prąd, gaz
Liczba pięter w budynku 5
Garaż miejsce postojowe przed budynkiem
Piwnica 4,00 m²
Stan lokalu wysoki standard
Stan prawny Własność
Mies. czynsz admin. 575 PLN
Okna PCV
Instalacje wymienione
Balkon brak
Rok budowy 1953
Parking strzeżony (odległość w metrach) 10 m
Plac zabaw tak
Widok na inne budynki
Gaz tak - miejski
Woda ciepła - miejska
Dojazd asfaltowa/kostka
Otoczenie działki zabudowane
Ogrzewanie C.O. miejskie
Alarm tak
Winda tak
Liczba wind 1
Usytuowanie środkowe
Drzwi antywłamaniowe tak
Przystosowania dla niepełnosprawnych tak
Rolety antywłamaniowe tak
Liczba sypialni 1

Pomieszczenia

Powierzchnia pokoi 30/18 m2
Podłogi pokoi deska drewniana
Typ kuchni z nowoczesną zabudową kuchenną
Rodzaj kuchni aneks kuchenny - połączony z salonem
Podłoga kuchni gres
Typ łazienki razem z wc
Liczba łazienek 1
Powierzchnia łazienki 4,00 m2
Glazura łazienki nowego typu
Podłoga łazienki gres
Wyposażenie łazienki prysznic, umywalka, WC, kabina prysznicowa, lustro, pralka
Liczba przedpokoi 1
Powierzchnia przedpokoi 4,00 m2
Podłoga przedpokoi gres, parkiet

Dane:

PLN
%

Wynik:

PLN
pierwsza rata
ostatnia rata
PLN
PLN
PLN
PLN
PLN
PLN
PLN
%
PLN
PLN
PLN

PLN

Uwaga: mogą wystąpić dodatkowe opłaty za założenie księgi wieczystej oraz ustanowienie hipoteki.

oferta specjalna
mieszkanie na sprzedaż - Warszawa, Ochota, Szczęśliwice, Opaczewska

Warszawa, Ochota, Szczęśliwice, Opaczewska
mieszkanie na sprzedaż

MKI-MS-59719

Piękne 68m2 mieszkanie na warszawskiej Ochocie. Położone bezpośrednio przy skwerze, 3 min spacerem do parku Szczęśliwice, CH Blue City, Reduta. Mieszkanie jest bardzo wysokie 3m. Składa się z: - salonu, - sypialni, - kuchni, - łazienki - przedpokoju, - loggi. Do ...

Powierzchnia
68,00 m2
Piętro
3
Pokoje
2 pokoje
Cena za m2
18 529,41 zł
cena 1 260 000
mieszkanie na sprzedaż - Warszawa, Ochota, Szczęśliwice, Opaczewska
oferta specjalna
mieszkanie na sprzedaż - Warszawa, Mokotów, Górny Mokotów, Kazimierzowska

Warszawa, Mokotów, Górny Mokotów, Kazimierzowska
mieszkanie na sprzedaż

MKI-MS-59007

Sprzedam mieszkanie na Starym Mokotowie. Mieszkanie na wydzielone 2 pokoje, oddzielną kuchnię chociaż bez okna, łazienkę z toaletą oraz przedpokój. Okna od wschodu na ulicę. Mieszkanie w świetnej lokalizacji - wszędzie blisko, tramwaj, autobus, metro. Idealna lokalizacja ...

Powierzchnia
41,00 m2
Piętro
parter
Pokoje
2 pokoje
Cena za m2
19 146,34 zł
cena 785 000
mieszkanie na sprzedaż - Warszawa, Mokotów, Górny Mokotów, Kazimierzowska
oferta specjalna
mieszkanie na sprzedaż - Warszawa, Wilanów, Miasteczko Wilanów, Rzeczypospolitej

Warszawa, Wilanów, Miasteczko Wilanów, Rzeczypospolitej
mieszkanie na sprzedaż

MKI-MS-59452

Bardzo ładne  trzy pokoje z tarasem. -  2 sypialnie 11m2 i 10m2, - salon z aneksem kuchennym 16m2, - otwarty taras 13 metrów, - łazienka 5,7m2, - hol. Całkowita powierzchnia 50,2 metra. Wysokość sufitu 2,8 metra. Parkiet dębowy. Panoramiczne drewniane okna w podłodze. ...

Powierzchnia
50,20 m2
Piętro
3
Pokoje
3 pokoje
Cena za m2
18 904,38 zł
cena 949 000
mieszkanie na sprzedaż - Warszawa, Wilanów, Miasteczko Wilanów, Rzeczypospolitej
oferta specjalna
mieszkanie na sprzedaż - Warszawa, Mokotów, Górny Mokotów, Wiktorska

Warszawa, Mokotów, Górny Mokotów, Wiktorska
mieszkanie na sprzedaż

MKI-MS-59457

Apartament / metro Racławicka / garaż / 2 pokoje - 47m2 / ochrona  Mieszkanie 47m2 w samym centrum Mokotowa w świetnie zlokalizowanym, nowoczesnym apartamentowcu przy ul. Niepodległości, schowany w cichej uliczce. Do metra Racławicka 300m, dodatkowo blisko linie autobusowe ...

Powierzchnia
47,00 m2
Piętro
1
Pokoje
2 pokoje
Cena za m2
23 829,79 zł
cena 1 120 000
mieszkanie na sprzedaż - Warszawa, Mokotów, Górny Mokotów, Wiktorska

Napisz do nas

Proszę wypełnić to pole
Proszę wypełnić to pole
Proszę wypełnić to pole
Proszę wypełnić to pole
Trwa wysyłanie...

Ta strona wykorzystuje pliki cookies w celach statystycznych oraz w celu dostosowania naszych serwisów do indywidualnych potrzeb klientów. Zmiany ustawień dotyczących plików cookie można dokonać w dowolnej chwili modyfikując ustawienia przeglądarki. Korzystanie z tej strony bez zmian ustawień dotyczących cookies oznacza, że będą one zapisane w pamięci urządzenia.

rozumiem